协会服务热线:020-29126333

家装14个石材装饰细部构造节点图一览,建议收藏!

 二维码

图片


STONE

石材

知识


墙面石材饰面

细部构造

14个石材装饰细部构造节点图一览

STONE DECORATION





01

图片

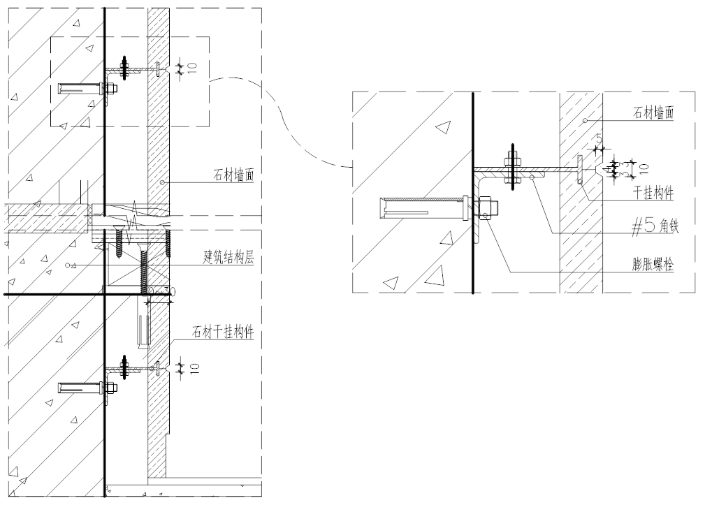
石材干挂法施工


图片


适用于

室内大厅、电梯厅等公共空间。


工序流程

放控制线→石材排板放线→预排石材→打膨胀螺栓→安装钢骨架→安装调节片→石材开槽→石材安装→石材填缝处理


要点

1)所有型钢规格符合国家标准,热镀锌处理,焊接部位做防锈处理。不锈钢石材挂件钢号为202以上、沿海项目需采用304钢号连接配件;


2)石材厚度要求在20mm以上,2500mm高以内的墙体,竖向需采用5#槽钢,横向采用40mm×40mm型角钢,间距根据石材的横缝排版确定;


3)2500mm高以上的墙体,竖向需采用8#槽钢,横向采50mm×5mm型角钢,间距根据石材的横缝排版确定。



02

图片

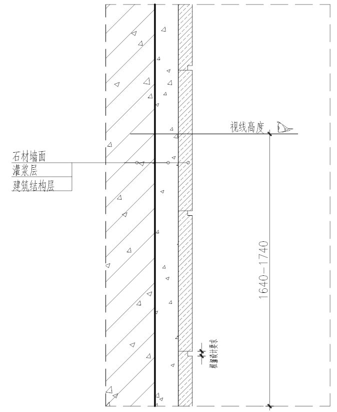
墙面石材U型凹槽排版


图片


适用于

室内大厅、电梯厅、卫生间等墙面。

要点

石材墙面横缝,需根据人体的视线高度排布。



03

图片

墙面石材阳角收口


图片


适用于

室内大厅、电梯厅、卫生间等墙面。


要点

1)墙面石材阳角收口均需45°拼接对角处理;

2)待墙面石材全部铺贴完成后,须调制与石材同色的云石胶作勾缝处理,勾缝必须严密;

3)墙面石材阳角按设计要求加工。



04

图片

墙面石材阴角收口


图片


适用于

室内大厅、电梯厅、卫生间等墙面。


要点

石材墙面有横缝时(如V字缝、凹槽)时,阴角收口均需45°(角度稍小于45°,以利于拼接)拼接对角处理,应在工厂内加工完成。


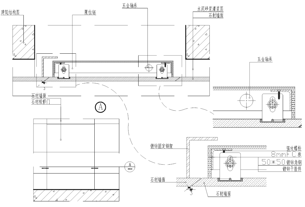
05

图片

石材检修门


图片


适用于

室内电梯厅、大厅、走道等。


要点

1)石材暗门需采用热镀锌角钢,角钢大小及滚珠轴承大小根据门体的自重选定,焊接部位作防锈处理;


2)石材干挂或安装、门边、框边切割面需抛光处理,钢架面采用防潮板包封;


3)为防止门与边框碰撞,会使石材破损,需在门与框之间安装限位链。



06

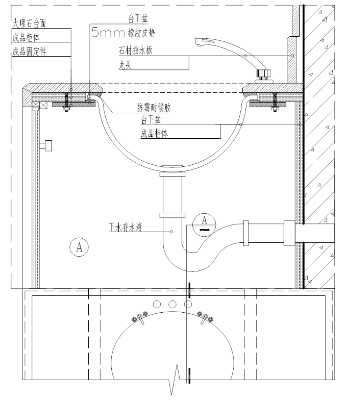
图片

钢架台盆安装


图片


适用于

卫生间下装台盆。


工序流程

放样→管线安装→基架焊接→基架墙面固定→石材工厂加工→台盆固定→现场安装


要点

1)台盆铁架须采用国标镀锌角钢,焊接处做防锈处理;


2)为便于台盆拆卸检修,台盆固定于固定构件上,固定构件与石材垫块用不锈钢或镀锌螺栓固定,垫块背面及台面背面粘结部位需经打毛处理用大理石胶粘结固定,台盆与固定构件连接处需用橡皮垫块,台盆与台面板下沿口用耐候胶密封。



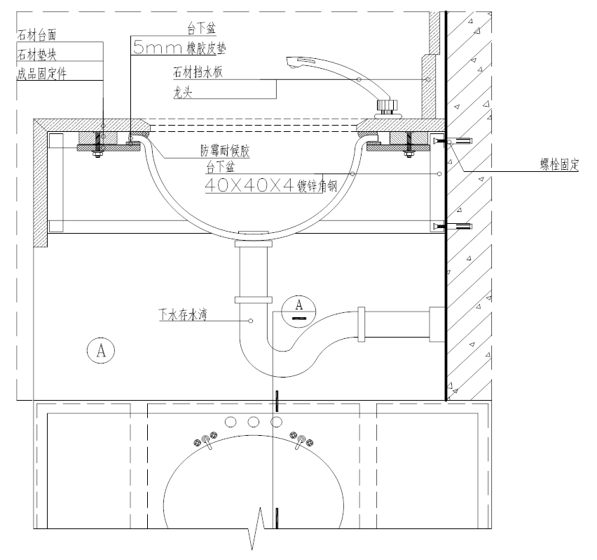
07

图片

台下柜台盆安装


图片


适用于

室内大厅、电梯厅、卫生间等墙面。


工序流程

放样→管线安装→木基架工厂制作→石材工厂加工→台盆固定→组合安装


要点

为便于台盆拆卸检修,台盆固定于固定构件上,固定构件与台下柜基板面φ8mm对穿螺丝固定,台盆与固定构件连接处需用橡皮垫块,台盆与台面板下沿口用耐候胶密封。



08

图片

卫生间玻璃隔断与大理石墙面交接


图片


适用于

卫生间、淋浴房、玻璃隔断等。


要点

1)淋浴房玻璃安装前,在两块石材间预埋“U”形不锈钢槽用AB胶或云石胶粘结固定,把玻璃嵌入槽内,接缝处打透明防霉硅胶;


2)U型不锈钢内径规格宽比玻璃厚度大2—4mm,深15mm—18mm,壁厚不小于1.2mm;


3)玻璃需四周磨边处理。



09

图片

淋浴房门预埋件安装


图片


适用于

卫生间、淋浴房。


要点

卫生间淋浴房开门安装,需在石材安装前预埋铁杆,直接与墙体固定(砂加气墙需采用对穿螺丝杆加固)。



10

图片

卫生间壁龛施工


图片


适用于

卫生间、厨房间墙面、石材、瓷砖施工。


要点

卫生间壁龛高度需按墙面石材或瓷砖排版而定,高度应于横缝跟平,并做与横缝相同的倒角或凹槽。



11

图片

浴缸石材收口施工

01

图片


适用于

卫生间。


工序流程

放样→角铁基架焊接安装→钢丝网安装→水泥砂浆粉刷→石材安装→浴缸安装


要点

1)浴缸与石材相接部位按浴缸边缘压石材的做法施工,石材台面按整块石材根据浴缸尺寸切割镂空磨边工厂加工完成后现场安装,石材与浴缸交接处用耐候胶收口;


2)浴缸周边石材部位作4*4镀锌角钢支撑架,钢丝网水泥砂浆粉刷后再安装石材,并留设石材检修暗门,检修门规格及方向需符合检修要求。



02

图片


适用于

卫生间。


工序流程

放样→角铁基架焊接安装→钢丝网安装→水泥砂浆粉刷→浴缸安装→石材安装→板缝处理


要点

1)浴缸与石材相接部位按石材压浴缸的做法施工,石材台面按整块石材根据浴缸尺寸切割镂空磨边工厂加工完成后现场安装,石材与浴缸交接处用耐候胶收口;


2)浴缸周边石材部位作4*4镀锌角钢支撑架,钢丝网水泥砂浆粉刷后再安装石材,并留设石材检修暗门,检修门规格及方向需符合检修要求。



03

图片


适用于

卫生间。


工序流程

放样→角铁基架焊接安装→钢丝网安装→水泥砂浆粉刷→浴缸安装→石材安装→板缝处理


要点

1)浴缸与石材相接部位按浴缸与石材做平的做法施工,石材与浴缸接缝处留2mm用耐候胶收口;


2)侧面留设石材检修暗门,检修门规格及方向需符合检修要求。



12

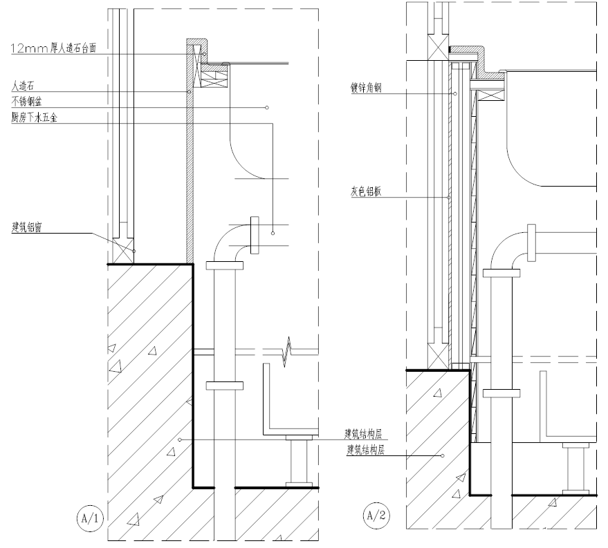
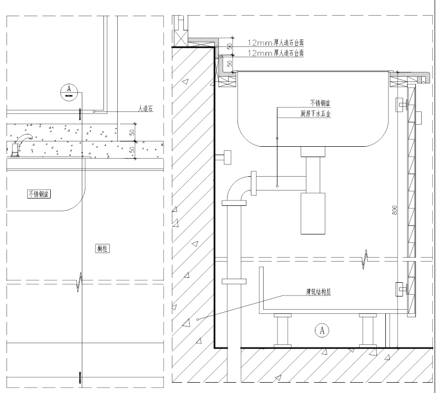
图片

全窗台橱柜台面翻边施工


图片


适用于

厨房。


要点

人造石台面板与窗台部位高差50—70mm,为保证整体美观效果,人造石台面挡水应跟通至窗框边。



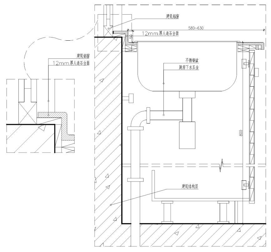
13

图片

高窗台橱柜台面翻边施工


图片


适用于

厨房。


要点

人造石台面板与窗台部位高差大于80mm,人造石台面挡水外凸,窗台边用人造石或厨房面砖跟通。



14

图片

低窗台橱柜台面翻边施工


图片


适用于

厨房低窗台部位。


要点

窗台部位低于人造石台面板,人造石台面挡水做出后需跟窗边或预留不小于100mm的操作空间后跟通至窗台面。


END