协会服务热线:020-29126333

石材与柱体、混凝土墙、加气块墙相接工艺做法

 二维码

图片

01

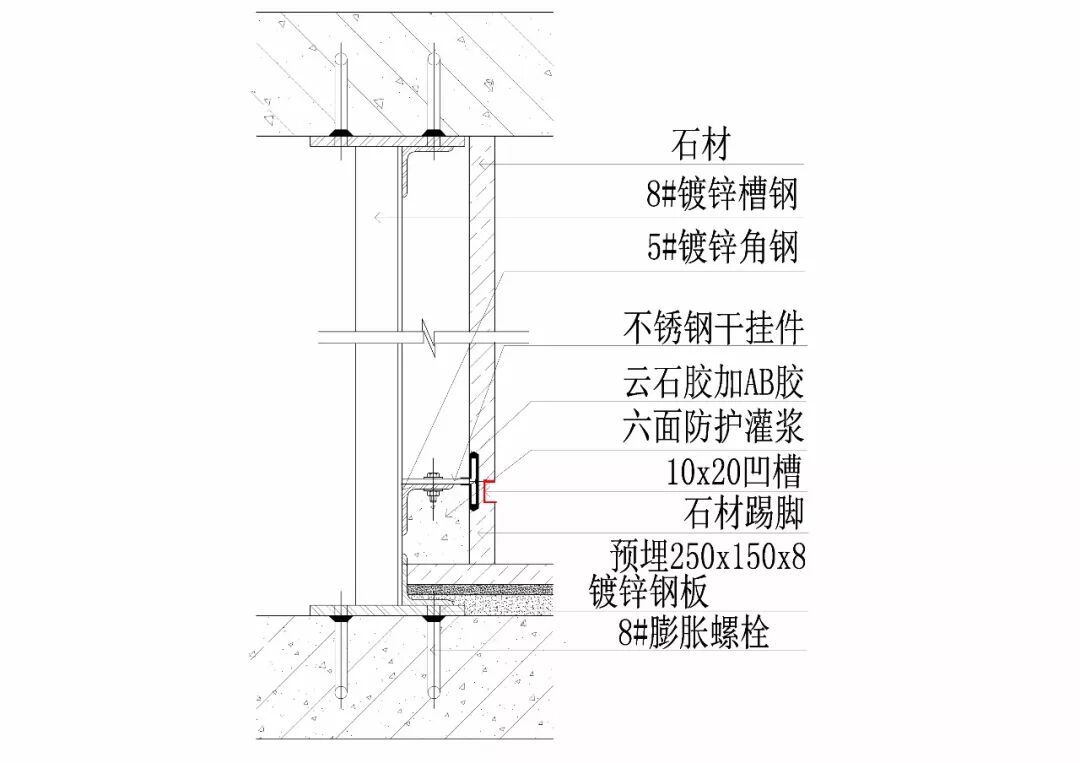
石材与混凝土柱体相接工艺

图片


注意事项:

①、4m高的柱体,采用8#槽钢

②、高于4m高的柱体,采用10#槽钢

③、石材排版的不同决定5#角钢的间距

用料及分层做法:

①、选用18mm石材,均经过六面防护、晶面处理

②、塑造石材造型,3mm倒角磨边

③、混凝土柱体固定镀锌钢板,一般用8#膨胀螺栓固定

④、在干挂件无法满足造型的需求下,采用满焊5#角钢转接件,以调整完成面与墙体的间距

⑤、满焊8#镀锌槽钢竖向

⑥、满焊5#镀锌角钢横向龙骨

⑦、固定不锈钢干挂件

⑧、AB胶固定石材,安装完成

⑨、近色云石胶补缝,水抛晶面




02

石材与建筑钢柱相接工艺

图片


注意事项:

①、4m高的柱体,采用8#槽钢

②、高于4m高的柱体,采用10#槽钢

③、石材排版的不同巨鼎5#角钢的间距

用料及分层做法:

①、选用18mms石材,均经过六面防护,晶面处理

②、塑造石材造型,3mm倒角磨边

③、抱箍固定于钢柱,不可与其焊接,顶地固定镀锌钢板,一般用8#膨胀螺栓固定

④、满焊8#镀锌槽钢竖向,与抱箍、顶地镀锌钢板焊接

⑤、满焊5#镀锌角钢横向龙骨

⑥、固定不锈钢干挂件

⑦、AB胶固定石材,安装完成

⑧、近色云石胶补缝,水抛晶面。




03

石材与混凝土墙体相接(卫生间挂贴)

图片

注意事项:

①、石材背面刷防碱涂料

②、墙面做防水处理

用料及分层做法:

①、墙面做JS防水层

②、选用18mm石材,均经过六面防护,晶面处理

③、塑造石材造型,上下口做3mm倒角

④、石材安装前进行打眼,方便铜丝固定(上下共4个眼)

⑤、钢筋与石材固定

⑥、土建墙体固定膨胀螺栓

⑦、钢筋于螺栓固定,钢筋成网状

⑧、铜丝拴绑于钢筋网

⑨、石材与墙体之间填充水泥砂浆,即灌浆




04

石材与加气块墙体相接工艺

图片

图片



注意事项:

①、4m高的墙体,采用8#槽钢

②、高于4m高的墙体,采用10#槽钢

③、石材排版的不同决定5#角钢的间距

用料及分层做法:

①、选用18mm石材,均经过六面防护、晶面处理

②、塑造石材造型,上下口做3mm倒角

③、加气块墙体固定镀锌钢板,一般用8#穿墙螺栓固定

④、在干挂件无法满足造型的需求下,采用满焊5#角钢转接件,以调整完成面与墙体的间距

⑤、满焊8#镀锌槽钢竖向

⑥、满焊5#镀锌角钢横向龙骨

⑦、固定不锈钢干挂件、AB胶固定石材,安装完成

⑧、近色云石胶补缝,水抛晶面




05

石材与混凝土墙体相接工艺

图片

图片

注意事项:

①、4m高的墙体,采用8#槽钢

②、高于4m高的墙体,采用10#槽钢

③、石材排版的不同决定5#角钢的间距

④、石材高度大于等于500mm,中间用石材加云石胶定位AB胶加固⑤、马片间距,石材800mm以内用两个马片,800mm以外用三个马片,马片间距不大于500mm

用料及分层做法:

①、选用18mm石材,均经过六面防护、晶面处理

②、塑造石材造型,上下口做3mm倒角

③、加混凝土墙体固定镀锌钢板,一般用8#穿墙螺栓固定

④、在干挂件无法满足造型的需求下,采用满焊5#角钢转接件,以调整完成面与墙体的间距

⑤、满焊8#镀锌槽钢竖向

⑥、满焊5#镀锌角钢横向龙骨

⑦、固定不锈钢干挂件、AB胶固定石材,安装完成

⑧、近色云石胶补缝,水抛晶面




06

石材与石材拼接工艺做法

图片

图片

图片

注意事项:

①、石材与石材拼接要做到防撞,需采用石材倒角/磨边方法

②、石材与石材拼接若在一个平面上,需做留缝、倒角、错位或采用收口条等,不建议直接对接

施工工序:

准备工作→现场放线→材料加工→基层处理→石材干挂结构框架固定→石材专用AB胶粘结→铺贴石材→完成面处理

用料及分层做法:

①、石材专用干挂配件

②、选用指定石材加工、固定矿建

③、用石材专用AB胶固定安装

④、安装时倒5*5防撞斜角

⑤、石材需做六面防护

完成面处理:

①、用专用填缝剂擦缝、保洁

②、用专用保护膜做成品保护




07

石材暗门工艺做法

图片

注意事项:

①、暗门两侧做防火封堵

②、暗门开启处做斜边倒角

③、从石材45°至转轴70°

④、石材完成面到转轴中心应为35mm

用料及分层做法:

①、选用18mm石材,均经过六面防护、晶面处理

②、塑造石材造型

③、安装转轴、做暗门钢架基层

④、固定不锈钢干挂件,AB胶固定石材,安装完成

⑤、2mm镀锌钢板封堵暗门钢架基层(内面)

⑥、门两侧与墙体钢架交界处做玻镁板,进行防火封堵




08

石材隔墙工艺做法

图片

图片

注意事项:

①、净空低于4m,采用8#槽钢

②、净空高于4m,采用10#槽钢

③、石材排版的不同决定5#角钢的间距

④、双面石材隔墙厚度过厚,应采用5#角钢、8#槽钢做横撑或斜撑

⑤、墙面3m以内加一个支撑点3m以至4m两个支撑点,平均间距大于1.5m小于1.3m即加支撑点

用料及分层做法:

①、选用18mm石材,均经过六面防护、晶面处理

②、塑造石材造型

③、顶地固定镀锌钢板,一般用8#膨胀螺栓固定

④、满焊8#镀锌槽钢竖向

⑤、满焊5#镀锌角钢横向龙骨

⑥、固定不锈钢干挂件,AB胶固定石材,完成安装

⑦、近色云石胶补缝,水抛晶面